Les infos Essentielles
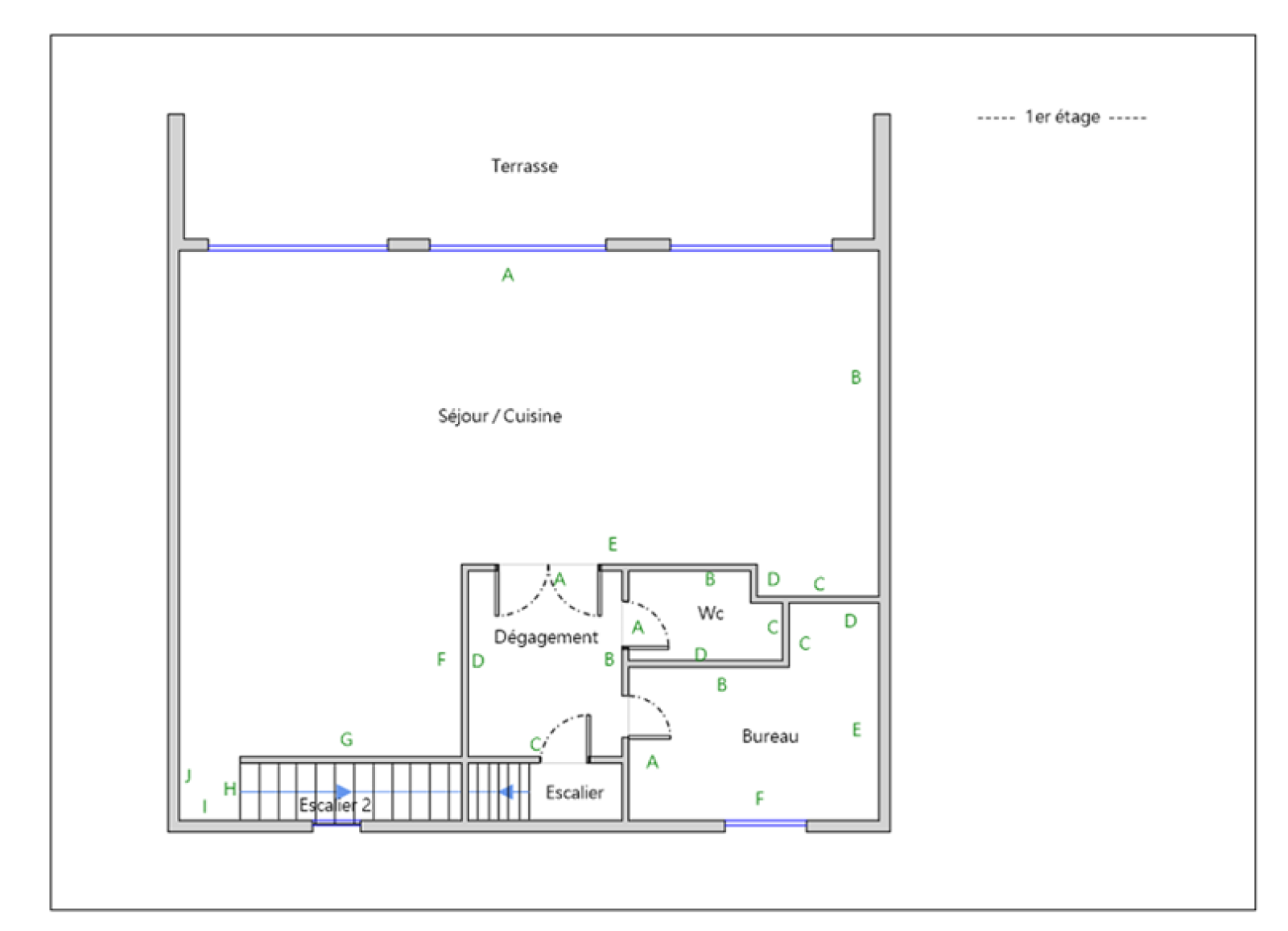
Sur mon terrain de 455 m² en centre-ville d'Arles, j'ai fière allure ! J'ai conservé le charme des années trente, époque où je fus construite, avec notamment de splendides carreaux de ciment et d'élégantes cheminées de marbre. Suite à d'importants travaux de rénovation effectués en 2016, j'offre également un confort remarquable et des performances d'isolation thermique bien honorables pour mon âge ! De ma grande terrasse exposée sud, vous pourrez contempler mon jardin arboré et agrémenté d'une piscine. Coté habitation, je suis généreuse et offre pour les pièces principales, un vaste séjour d'environ 50 m² avec cuisine ouverte, quatre chambres, un atelier (voir plans et tableau des surfaces dans la rubrique photos). J'attends avec impatience votre visite et ne manquerai pas de vous séduire ! Mon prix comprend les honoraires de l'agence Martinez & Martinez Immobilier à la charge du vendeur.
Localisation Du bien
-
Commerces et santé
-
Loisirs
-
Ecoles
-
Transports
-
Pratique
Les infos Energetiques
La base légale du traitement repose sur l’intérêt légitime de l'Agence / du Réseau.
Elles sont conservées jusqu'à demande de suppression et sont destinées à l'Agence / au Réseau.
Conformément à la loi « informatique et libertés », vous pouvez exercer votre droit d'accès aux données vous concernant et les faire rectifier en contactant l'Agence / le Réseau.
Si vous estimez, après avoir contacté l'Agence / le Réseau, que vos droits « Informatique et Libertés » ne sont pas respectés, vous pouvez adresser une réclamation à la CNIL.
Nous vous informons de l’existence de la liste d'opposition au démarchage téléphonique « Bloctel », sur laquelle vous pouvez vous inscrire ici : https://www.bloctel.gouv.fr
Dans le cadre de la protection des Données personnelles, nous vous invitons à ne pas inscrire de Données sensibles dans le champ de saisie libre
Ce site est protégé par reCAPTCHA, les Politiques de Confidentialité et les Conditions d'Utilisation de Google s'appliquent.
